In modernen badezimmern ist das waschbecken ein hingucker ein wahres profimodell. Dafür muss aber die steckdose selbst eine schutzart besitzen und zwar mindestens ipx4 besser sogar ipx5.
Dann müssen sie das waschbecken nicht irgendwann höhersetzen.
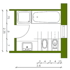
Abstand waschbecken zu waschbecken. So erreichen sie zwar keinen maximalen komfort jedoch einen kompromiss. Sehr wichtig ist auch dass sie vor dem waschbecken und dem wc genügend platz haben um sich zu bewegen. Mindestens 130 cm sollten sie als raum vor dem wc einplanen vor dem waschbecken min.
Je nachdem wie hoch das waschbecken hängt besteht hier also ein abstand von rund 30 zentimetern. Wenn sie den waschtisch häufig im sitzen benutzen sei es weil sie im rollstuhl sitzen oder sich beim waschen setzen müssen gelten die genannten höhen nicht. Abstand der armatur zum waschbecken eine allgemeingültige regel gibt es für den abstand nicht.
Allerdings ist es gut wenn sie sich bei der montage an den maßen orientieren die sonst im haus zu finden sind. Bei vielen waschbecken liegt die ausflussöffnung des wasserhahns 10 bis 15 cm über der waschbeckenoberkante. Bei waschtischen wird das oder die becken mit einem abstand zur vorderkante aufgesetzt oder eingelassen.
Dieser randabstand sollte zehn zentimeter nicht übersteigen. Sonst müssen die nutzer zu viel distanz überwinden und sich weit nach vorne beugen. Abstand der steckdose zum waschbecken für den abstand der steckdose zum waschbecken gelten die oben genannten schutzbereiche nicht wenn nicht die dusche direkt neben dem waschbecken ist es gibt also keinen mindestabstand.
Dafür muss aber die steckdose selbst eine schutzart besitzen und zwar mindestens ipx4 besser sogar ipx5. Dann müssen sie das waschbecken nicht irgendwann höhersetzen. übrigens ist auch für behinderte ein waschbecken mit zu großem abstand von vorderkante und mischbatterie problematisch.
Für rollstuhlfahrer sollte das waschbecken niemals höher als 80 cm hängen und eine weniger tiefe variante gewählt werden damit es behindertengerecht ist. Mit bis zu 60 kilogramm zählt die säule aus sanitärkeramik zu den schwersten modellen. In modernen badezimmern ist das waschbecken ein hingucker ein wahres profimodell.
Wie jeder star erbittet die badkeramik daher abstand der darüber hinaus ihrem bewegungsfreiraum dient. Wir empfehlen mindestens 75 cm abstand vor und. Welcher abstand sollte rund um das waschbecken eingehalten werden.
Um eine komfortable benutzung zu gewährleisten empfehlen die meisten experten einen mindestabstand von 75 cm vor dem waschbecken. In eine ähnliche kerbe schlägt die richtlinie 6000 des vereins deutscher ingenieure vdi. Diese empfiehlt 55 cm vor regulären waschbecken und 45 cm vor handwaschbecken.